• Prestations
  • Industriel et commercial
  • Collectivités
  • Collectif
  • Particulier
  • Visites Virtuelles
  • Maquette 3D
  • Articles
Yves-Marie Duvigneau Yves-Marie Duvigneau
Yves-Marie Duvigneau
  • Prestations
  • Industriel et commercial
  • Collectivités
  • Collectif
  • Particulier
  • Visites Virtuelles
  • Maquette 3D
  • Articles

BRE•Maison

2022
2022

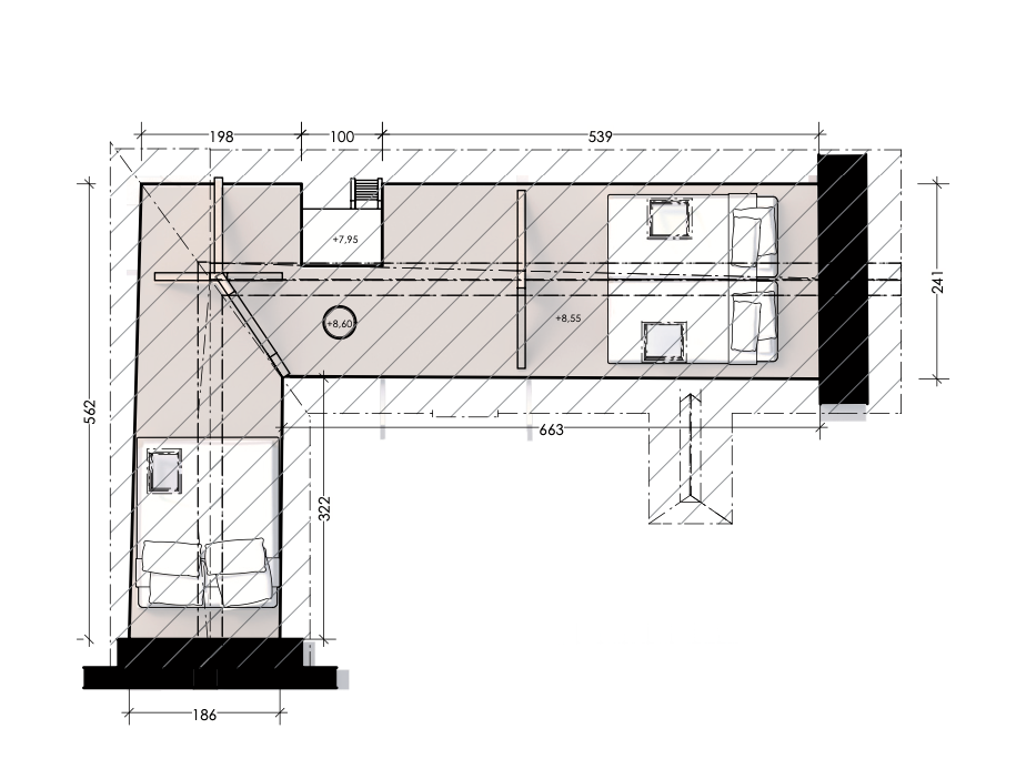
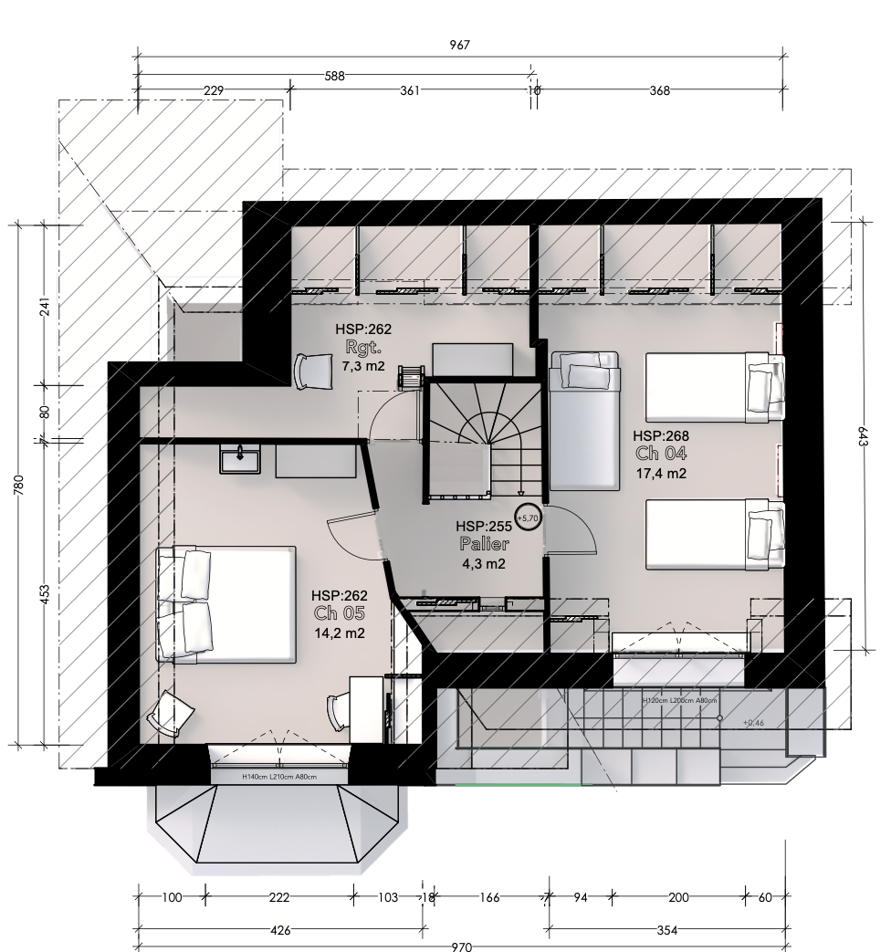
Relevé, mise en plan, mise en volume 3D d'une maison d'habitation

Retour aux projets