• Prestations
  • Industriel et commercial
  • Collectivités
  • Collectif
  • Particulier
  • Visites Virtuelles
  • Maquette 3D
  • Articles
Yves-Marie Duvigneau Yves-Marie Duvigneau
Yves-Marie Duvigneau
  • Prestations
  • Industriel et commercial
  • Collectivités
  • Collectif
  • Particulier
  • Visites Virtuelles
  • Maquette 3D
  • Articles

CNR•Maison

2022

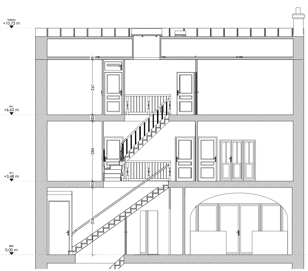
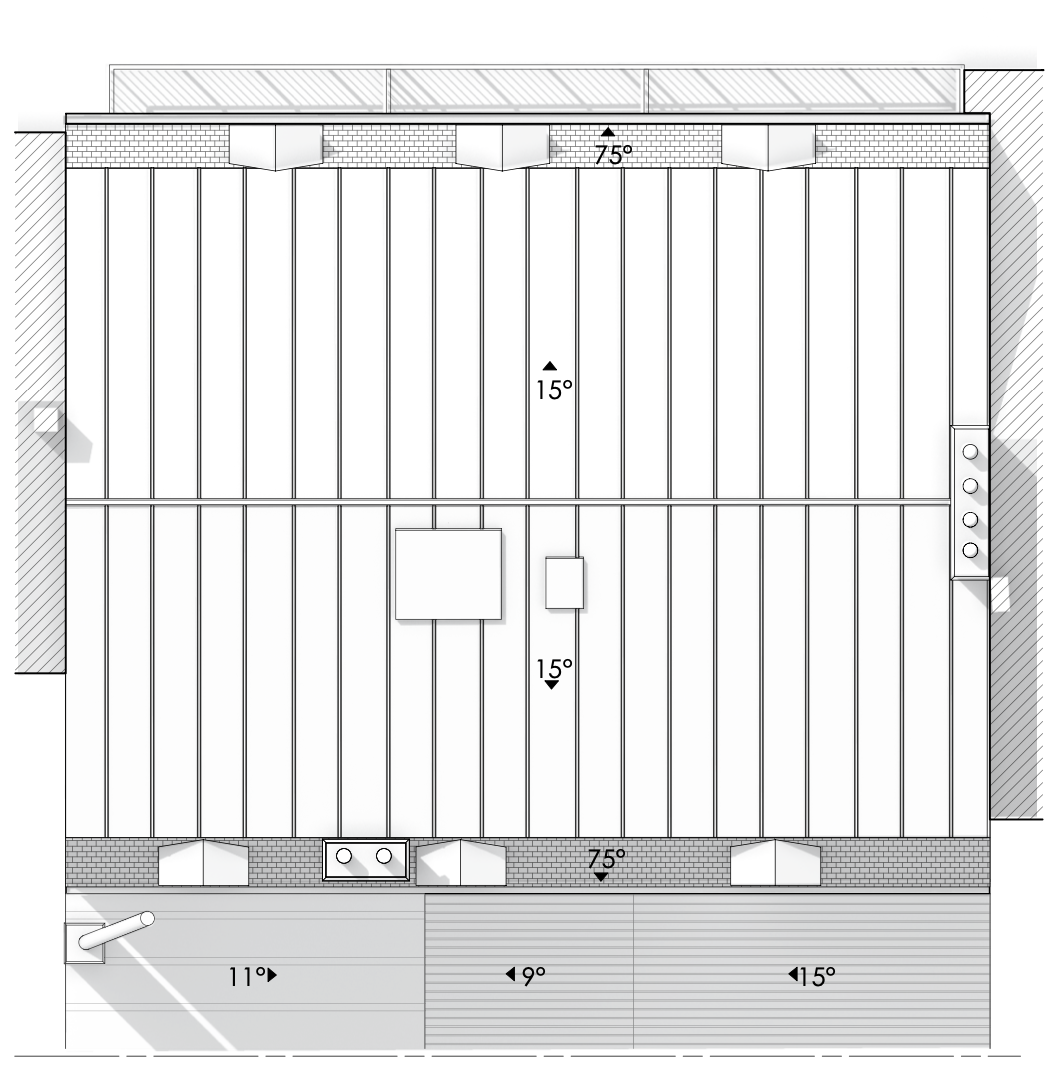
Relevé, mise en plan et mise en volume 3D d'une maison d'habitation

Retour aux projets
ADG•Maison
GTR•Appartement
CRD•Maison
BEL•Maison
CRN•Maison
JST•Maison
KRV•Corps de ferme
KRG•Maison
ROH•Maison
BST•Maison