• Prestations
  • Industriel et commercial
  • Collectivités
  • Collectif
  • Particulier
  • Visites Virtuelles
  • Maquette 3D
  • Articles
Yves-Marie Duvigneau Yves-Marie Duvigneau
Yves-Marie Duvigneau
  • Prestations
  • Industriel et commercial
  • Collectivités
  • Collectif
  • Particulier
  • Visites Virtuelles
  • Maquette 3D
  • Articles

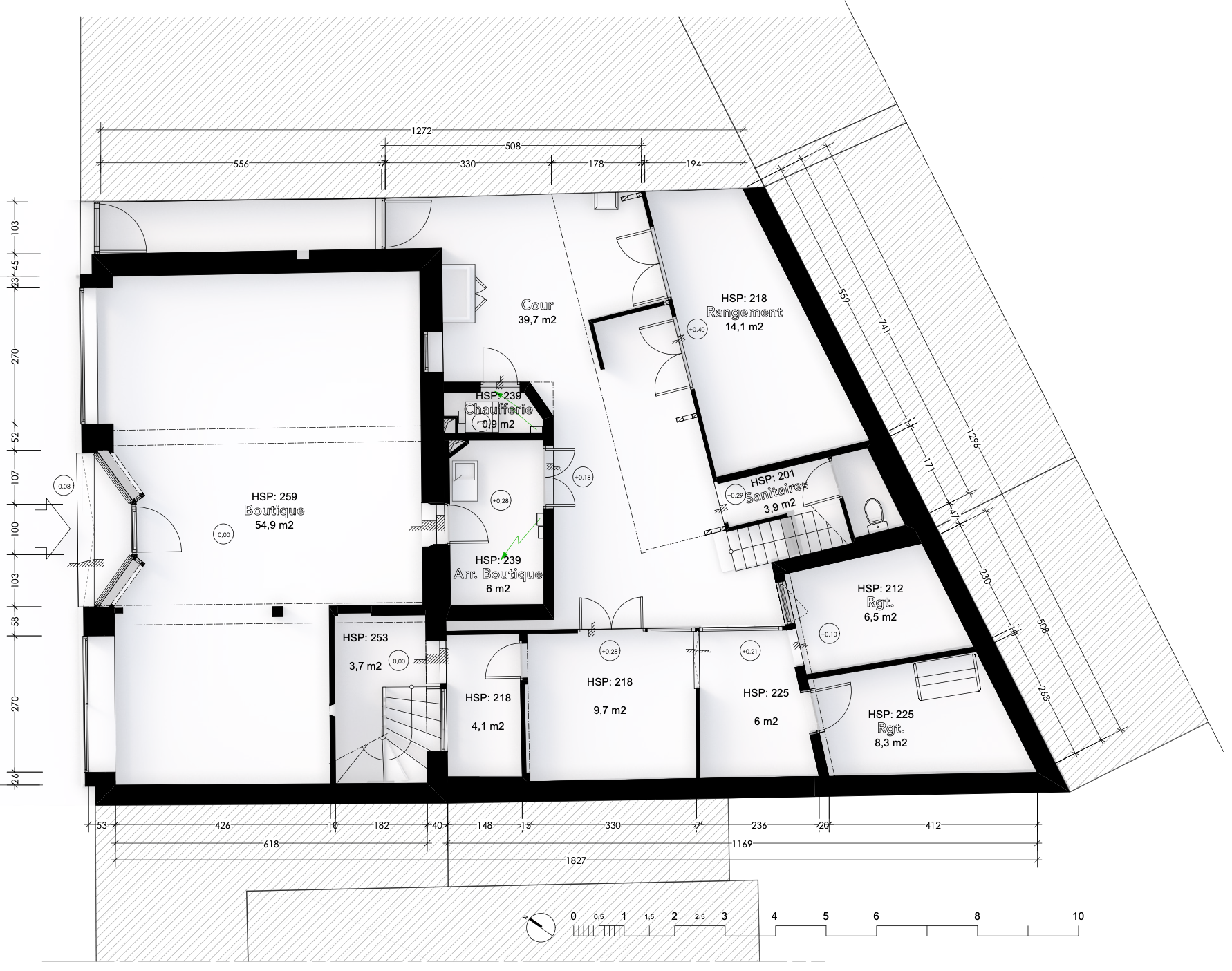
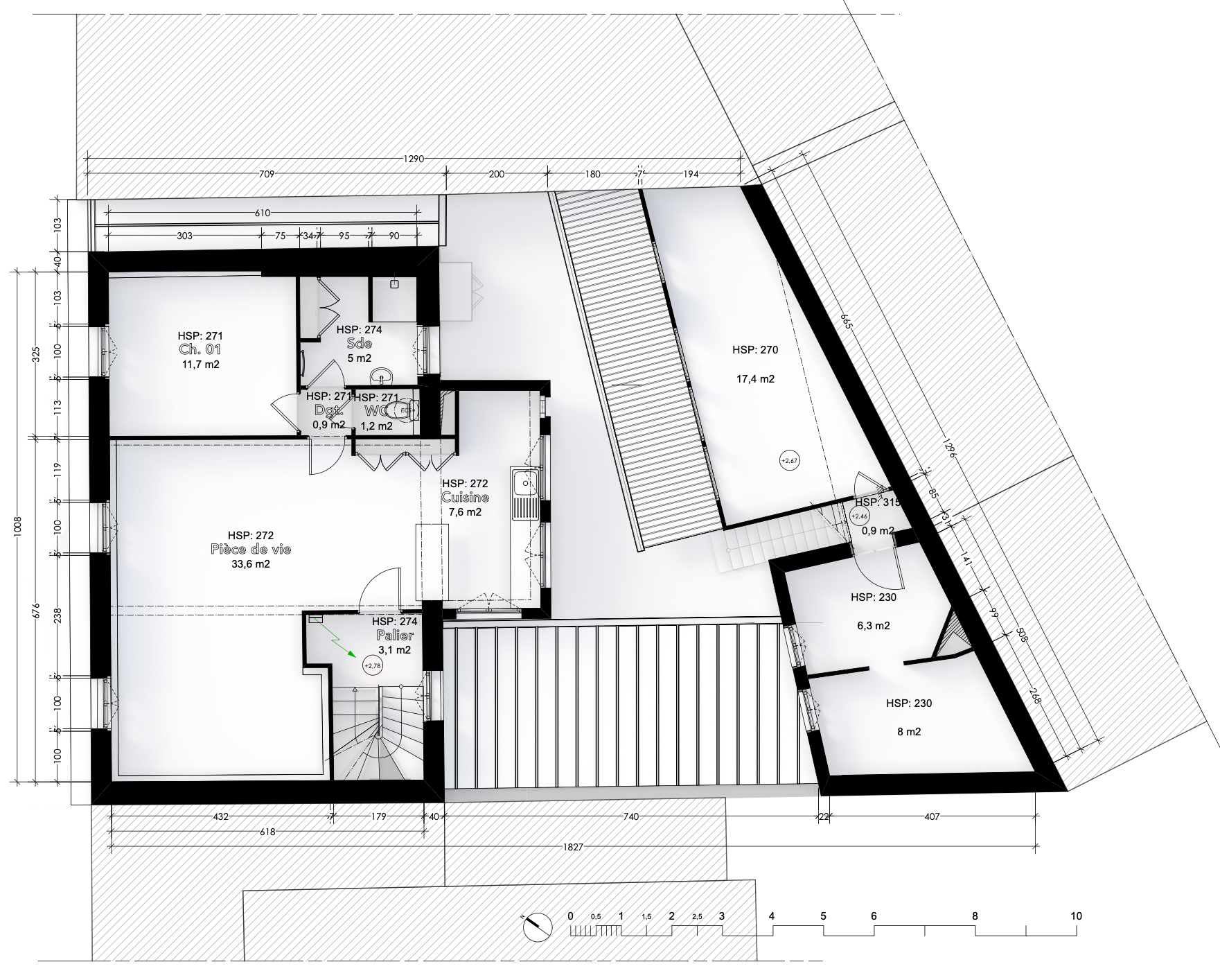
HLG•Immeuble

2022

Relevé, mise en plan et mise en volume 3D

Retour aux projets

MTK•Bâtiment commercial
CRL•Bâtiment industriel
TRB•Bâtiment industriel
KRS•Local commercial
MMB•Local commercial
DDL•Bâtiments industriel
BZT•Hall d'exposition
CO•Bâtiment commercial
RDP•Bâtiment commercial
EUR•Local commercial