• Prestations
  • Industriel et commercial
  • Collectivités
  • Collectif
  • Particulier
  • Visites Virtuelles
  • Maquette 3D
  • Articles
Yves-Marie Duvigneau Yves-Marie Duvigneau
Yves-Marie Duvigneau
  • Prestations
  • Industriel et commercial
  • Collectivités
  • Collectif
  • Particulier
  • Visites Virtuelles
  • Maquette 3D
  • Articles

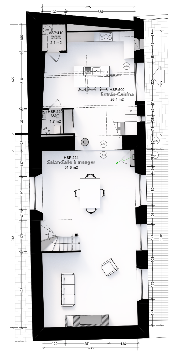
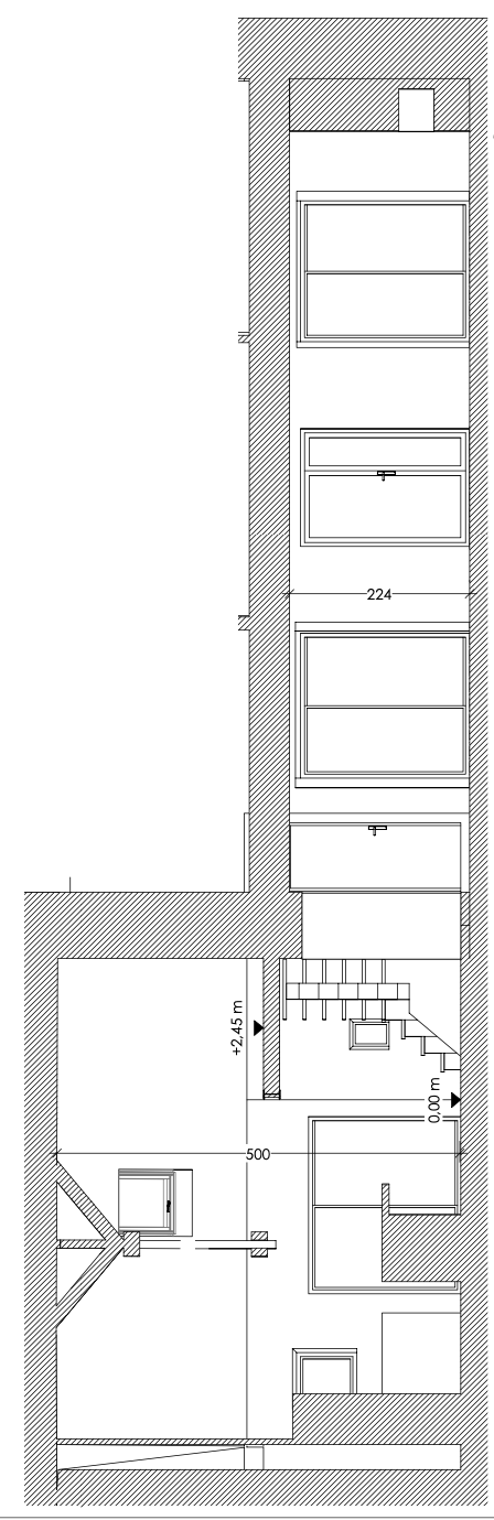
MRT•Maison

2024

Relevé, mise en plan et mise en volume 3D