• Prestations
  • Industriel et commercial
  • Collectivités
  • Collectif
  • Particulier
  • Visites Virtuelles
  • Maquette 3D
  • Articles
Yves-Marie Duvigneau Yves-Marie Duvigneau
Yves-Marie Duvigneau
  • Prestations
  • Industriel et commercial
  • Collectivités
  • Collectif
  • Particulier
  • Visites Virtuelles
  • Maquette 3D
  • Articles

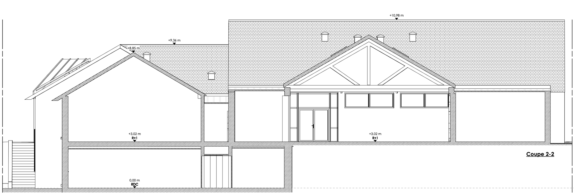
BBL•Bâtiment communal

2024

Relevé, mise en plan et mise en volume 3D

Retour aux projets
EMG•Établissement scolaire
EGL•Église
LGR•Local communal
PVA•Bâtiment communal
ERQ•Local communal
CAD-Établissement scolaire
CTM•Bâtiment communal
SDF•Local communal
PRS•Local communal
AZM-Bâtiment Universitaire