• Prestations
  • Industriel et commercial
  • Collectivités
  • Collectif
  • Particulier
  • Visites Virtuelles
  • Maquette 3D
  • Articles
Yves-Marie Duvigneau Yves-Marie Duvigneau
Yves-Marie Duvigneau
  • Prestations
  • Industriel et commercial
  • Collectivités
  • Collectif
  • Particulier
  • Visites Virtuelles
  • Maquette 3D
  • Articles

PVA•Bâtiment communal

2024

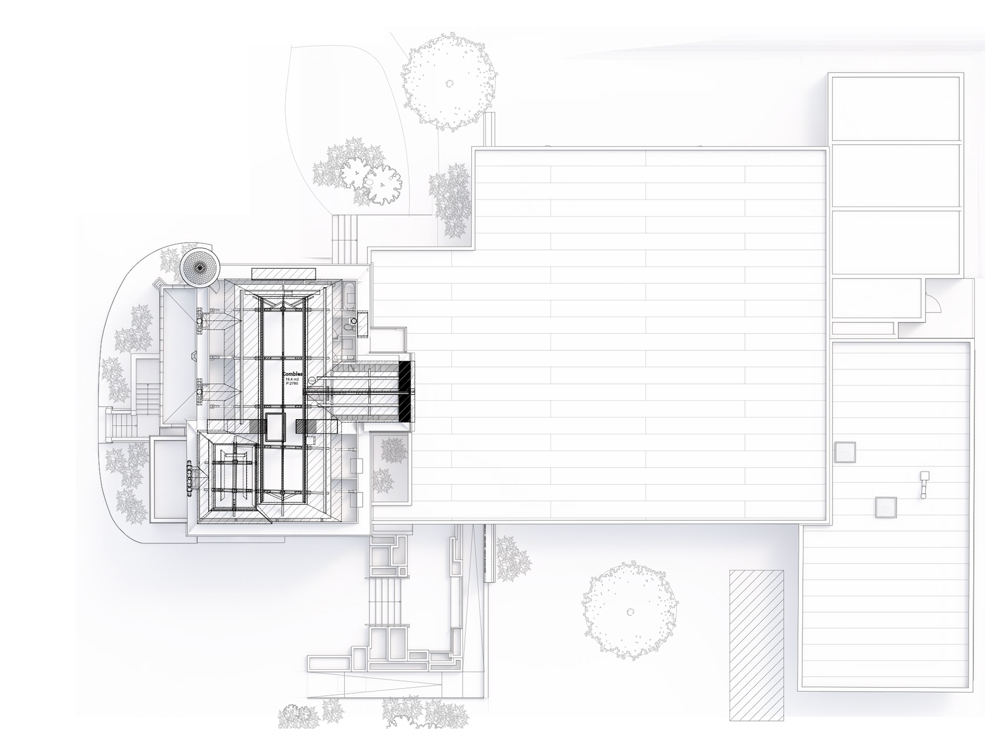
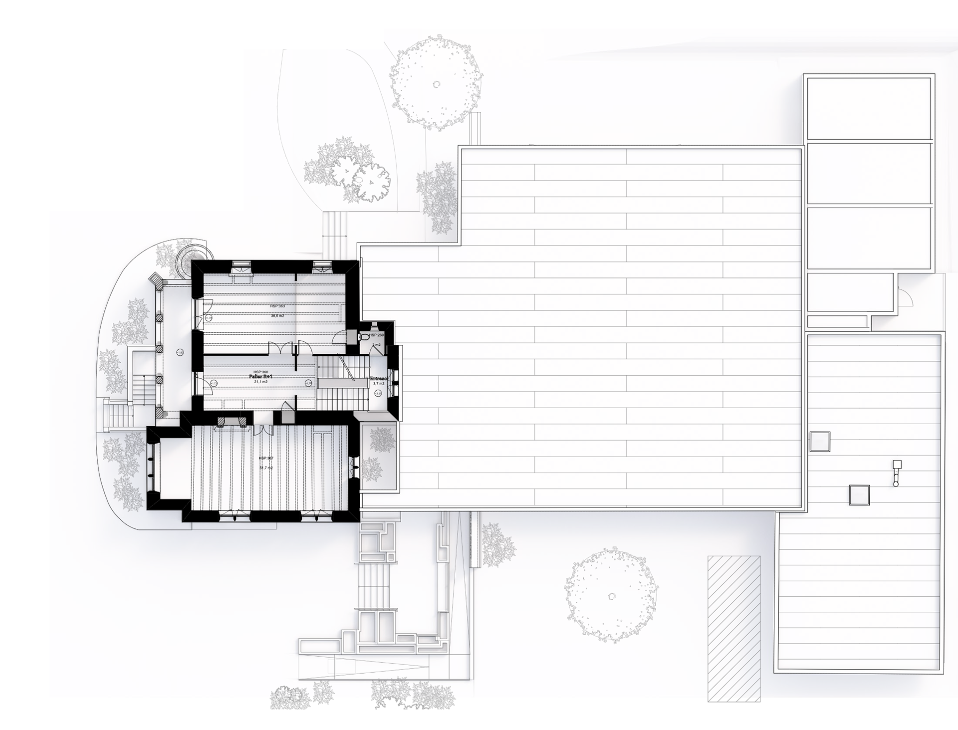
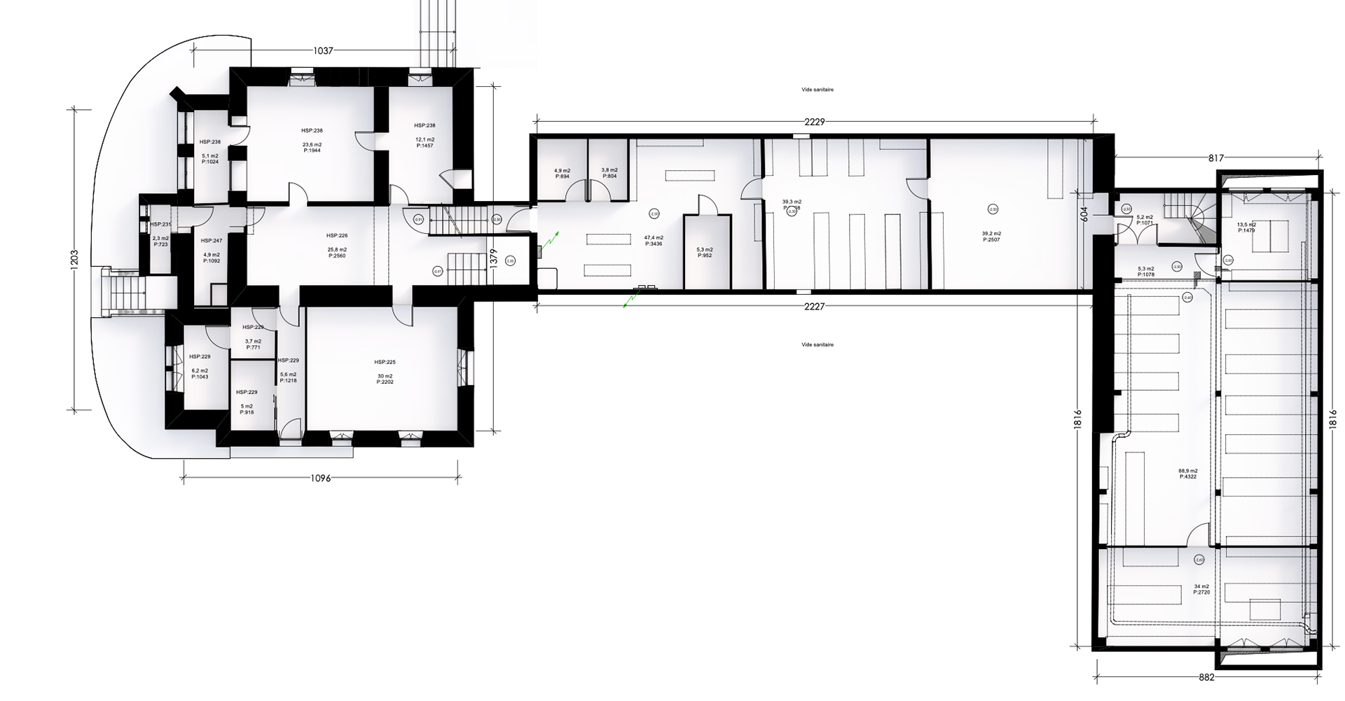
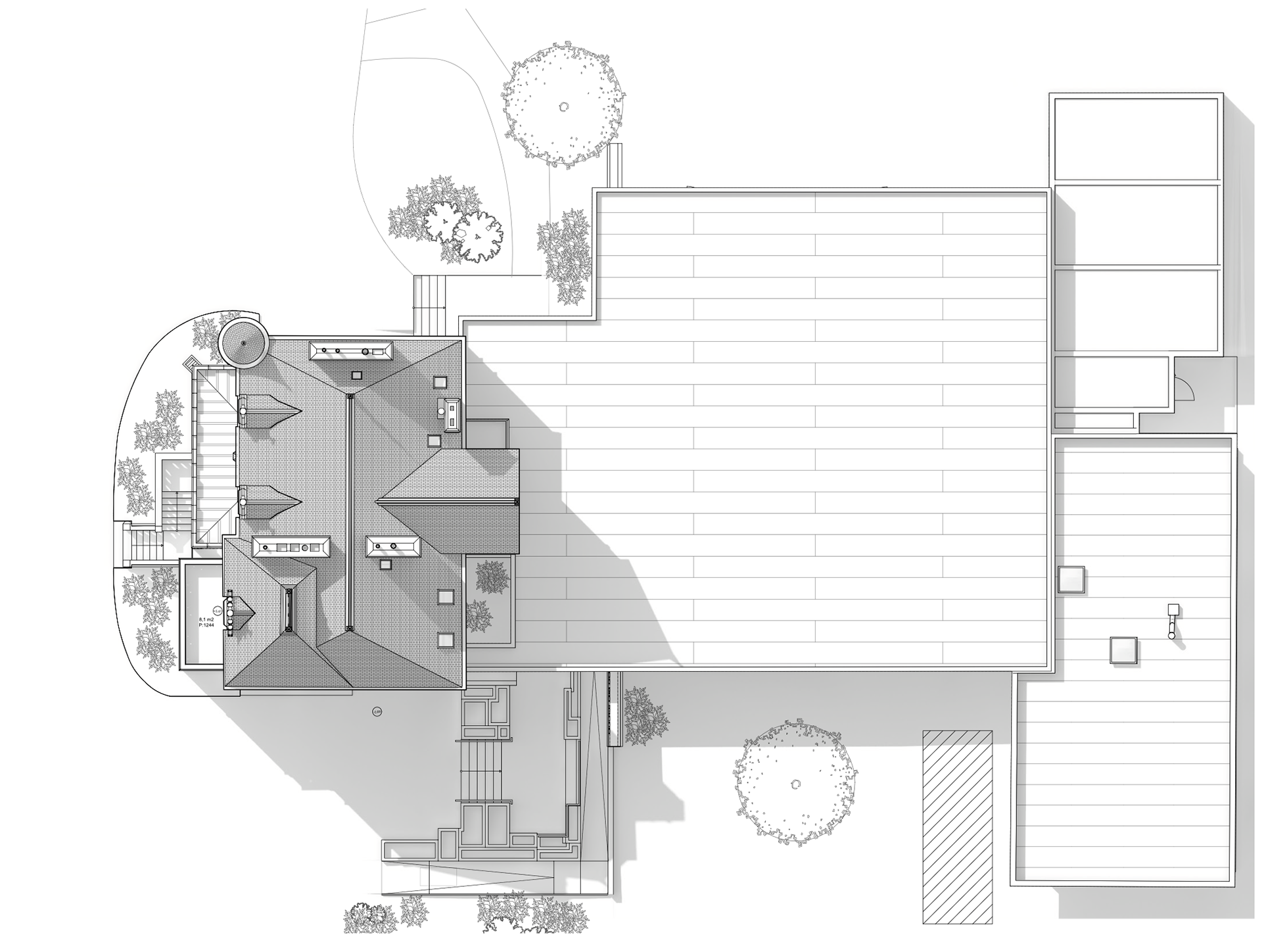
Relevé, mise en plan et mise en volume 3D

Retour aux projets
ERQ•Local communal
SDF•Local communal
CAD-Établissement scolaire
EGL•Église
CTM•Bâtiment communal
PRS•Local communal
LGR•Local communal
BBL•Bâtiment communal
EMG•Établissement scolaire
AZM-Bâtiment Universitaire