• Prestations
  • Industriel et commercial
  • Collectivités
  • Collectif
  • Particulier
  • Visites Virtuelles
  • Maquette 3D
  • Articles
Yves-Marie Duvigneau Yves-Marie Duvigneau
Yves-Marie Duvigneau
  • Prestations
  • Industriel et commercial
  • Collectivités
  • Collectif
  • Particulier
  • Visites Virtuelles
  • Maquette 3D
  • Articles

DMY•Maison

2022

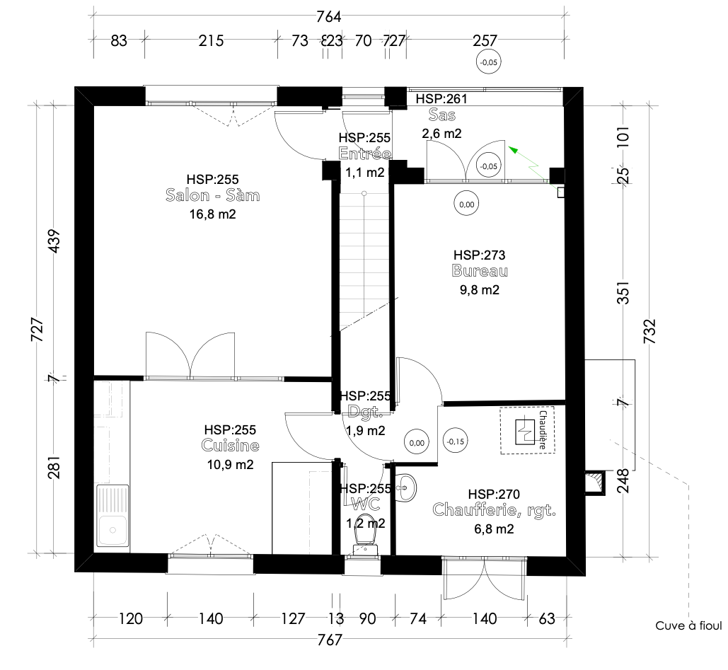
Relevé, mise en plan d'une maison d'habitation

Retour aux projets
GAR•Maison
DRY•Maison
TRM•Maison
BRE•Maison
ROH•Maison
MRL•Maison
KRV•Corps de ferme
CRD•Maison
GTR•Appartement
BEL•Maison