• Prestations
  • Industriel et commercial
  • Collectivités
  • Collectif
  • Particulier
  • Visites Virtuelles
  • Maquette 3D
  • Articles
Yves-Marie Duvigneau Yves-Marie Duvigneau
Yves-Marie Duvigneau
  • Prestations
  • Industriel et commercial
  • Collectivités
  • Collectif
  • Particulier
  • Visites Virtuelles
  • Maquette 3D
  • Articles

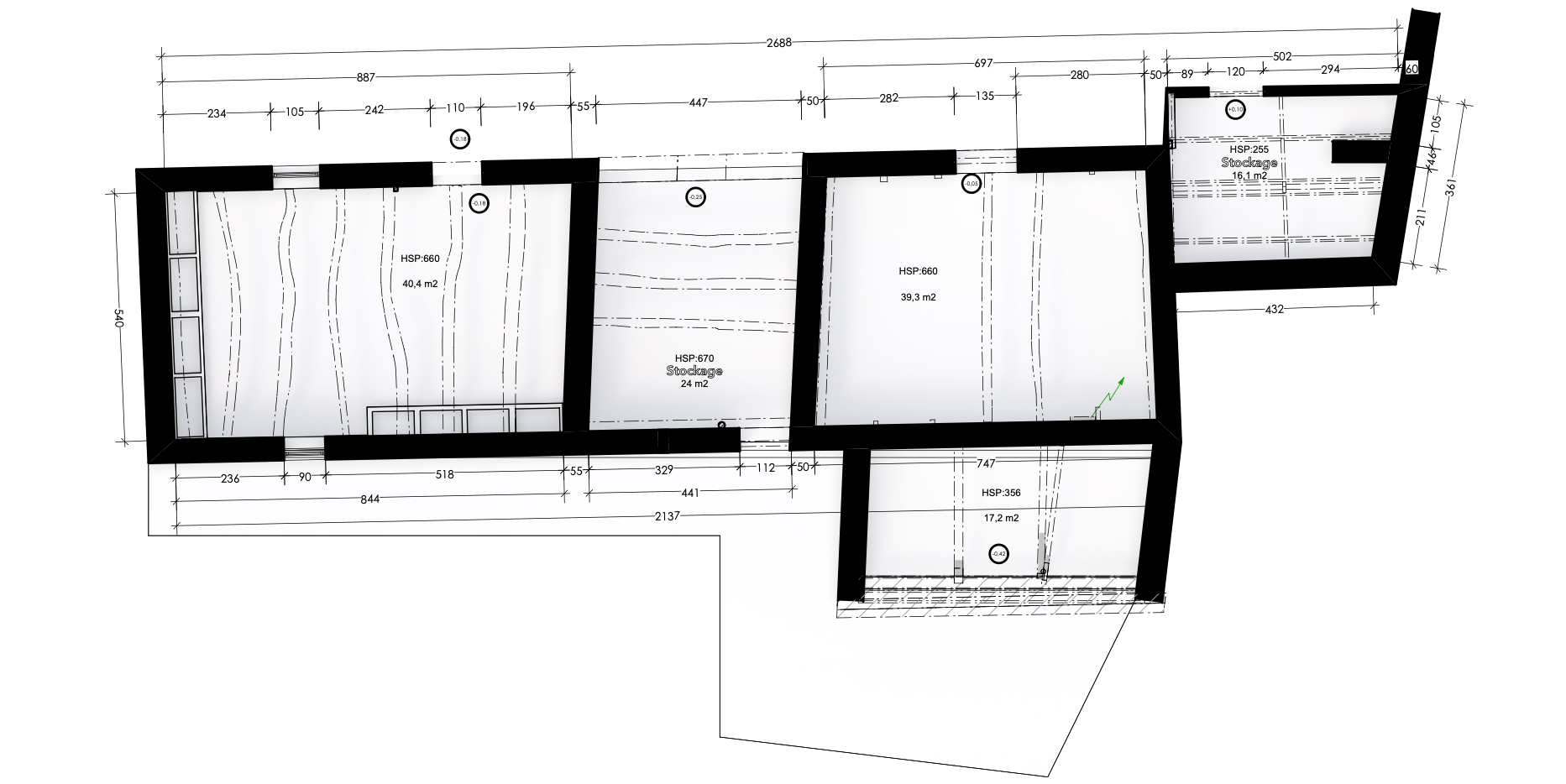
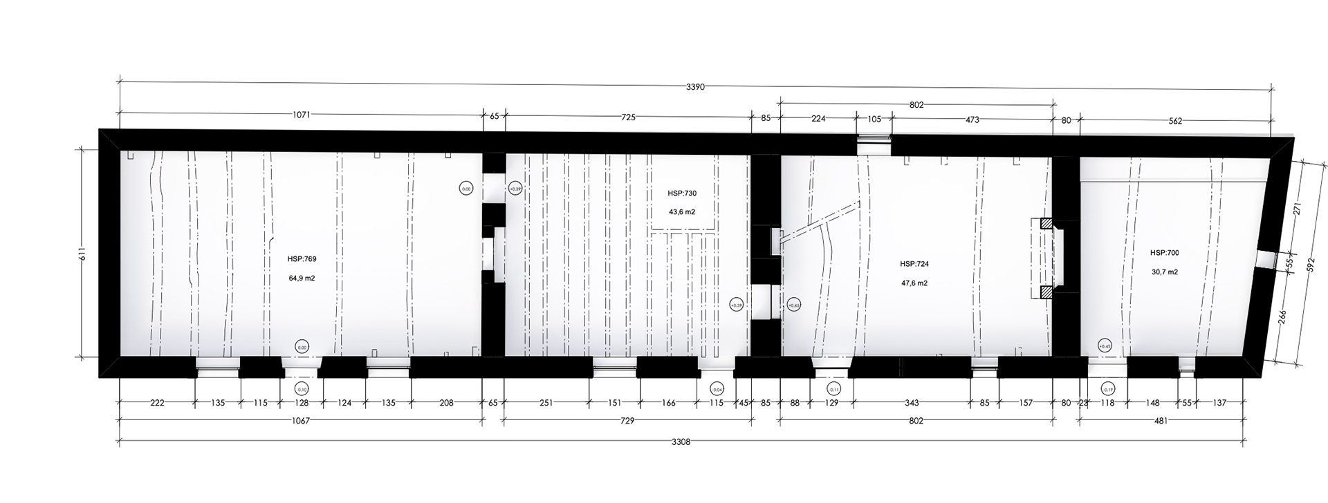
LGR•Local communal

2022

Relevé, mise en plan et mise en volume 3D

Retour aux projets
SDF•Local communal
CTM•Bâtiment communal
EMG•Établissement scolaire
ERQ•Local communal
CAD-Établissement scolaire
BBL•Bâtiment communal
PRS•Local communal
EGL•Église
AZM-Bâtiment Universitaire
PVA•Bâtiment communal